︎
nicolas
d’angelo
info
contact
ig
oxha
plana
sana
plataforma I
plataforma II
bala
puente
observatorio
leiva
rodney
eikos
otn
vsc
habitaria
parachute
parking
archizines
moposmocon
modular
instrucciones
small crafts
exhibition
bricolage
exhibition
mano I
mano II
idos I
idos II
idos III
idos IV
leiva
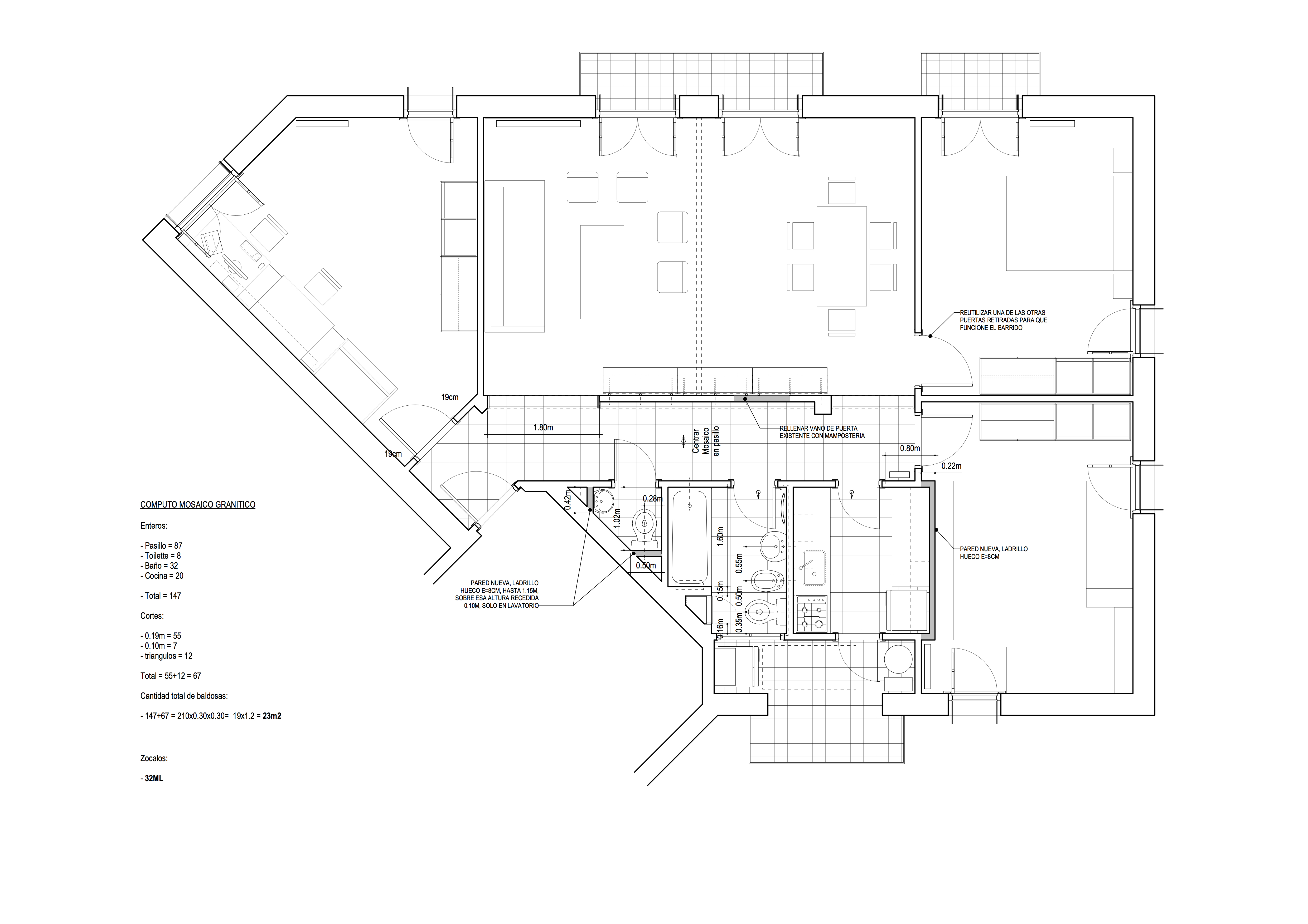
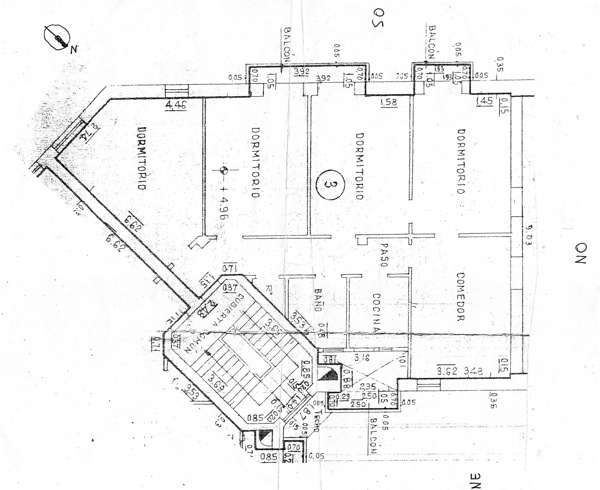
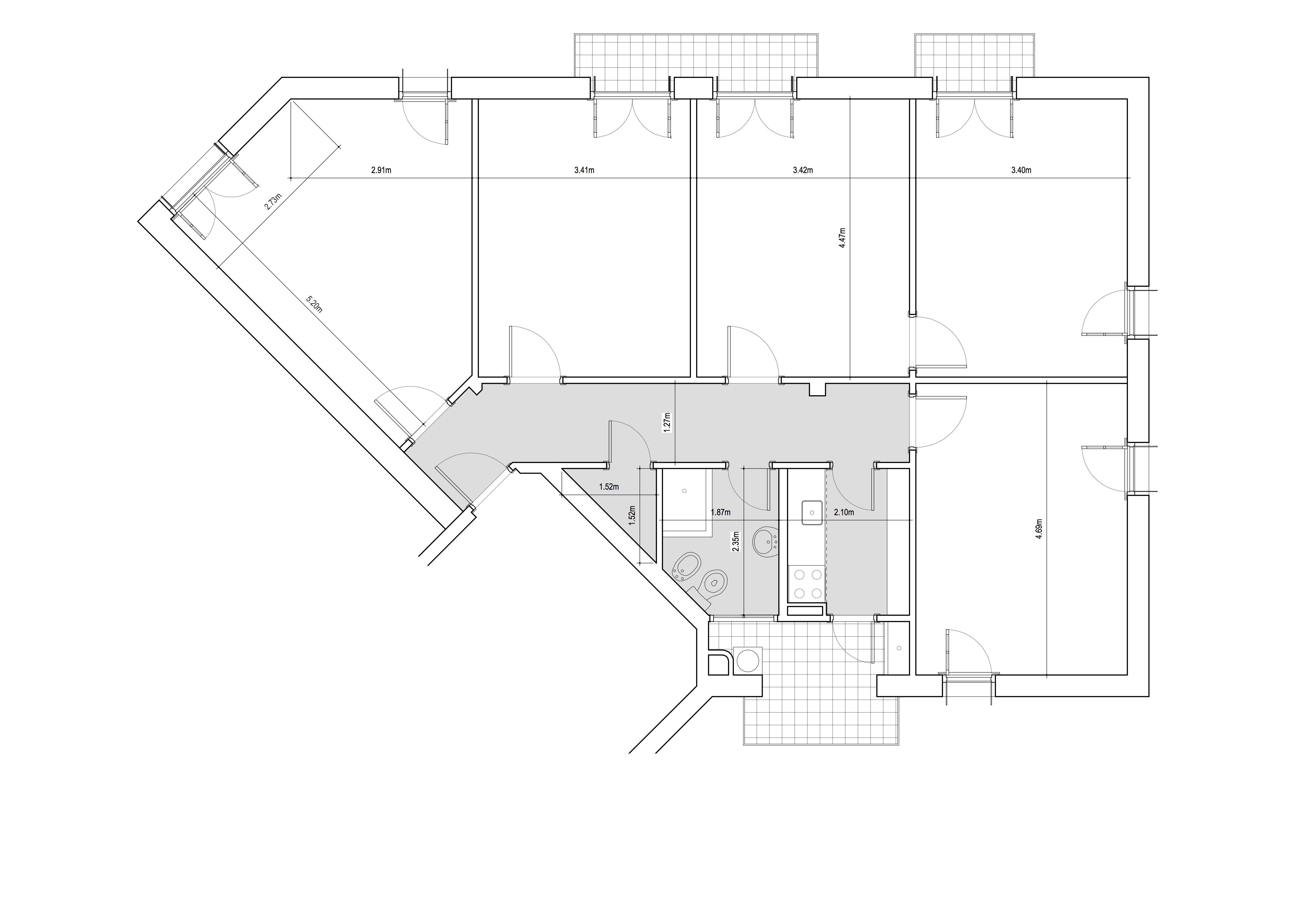
renovacion de un deparatamento 120m2
2009, buenos aires
+ info
︎︎︎
0